Amusement Logic is once again joining forces with Lulu Group International, this time to bring to life a new family entertainment centre under the Funtura brand. This collaboration, now the seventh between the two companies, consolidates a strategic alliance that reaffirms the commercial giant’s confidence in the experience and creativity of the Spanish team, undoubtedly an international benchmark in the design of entertainment and leisure spaces.
The project, currently under development, deploys a comprehensive concept that intertwines innovation and fun to create memorable experiences. According to preliminary plans, the design of the spaces reflects a multigenerational approach, ensuring attractions that appeal to children, young people and adults alike.
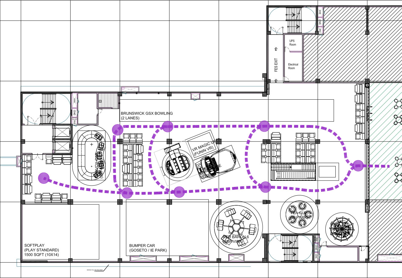
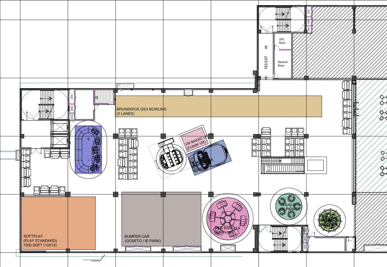
Among the most notable elements of the design are:
-A bowling alley: the centre will have two lanes on a state-of-the-art bowling alley, designed as a social and active leisure space for groups and families.
–Standard games, with a wide range of simulators, arcades and skill games, adjusted to strike a balance between challenge and accessible fun.
–Bumper car track: a classic reinvented, promising laughter and adrenaline in a safe and vibrant environment.
–Virtual reality gaming area.
-For the little ones: a “soft” area for safe play, a carousel and other spinning rides, and a convoy car attraction.
Beyond the catalogue of attractions, Amusement Logic emphasises architectural and spatial design that flows intuitively, promoting circulation, safety and the enjoyment of shared moments. The layout segregates and segments experiences by intensity or type, therefore optimising the visitor experience from the moment they arrive.
Company sources say that “this new project with Lulu Group International is a testament to our shared vision: to create leisure destinations that are much more than a collection of attractions, spaces where family bonds are strengthened, moments are celebrated and excitement is experienced in a meticulously designed environment.’
This seventh collaboration between Amusement Logic and Lulu Group International marks a milestone in the bilateral relationship, but also reinforces the international expansion of the Funtura brand as synonymous with quality family entertainment. The repeated success of these projects underscores the ability to understand global market demands and translate them into viable, attractive and commercially successful designs.








